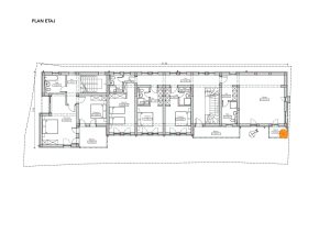
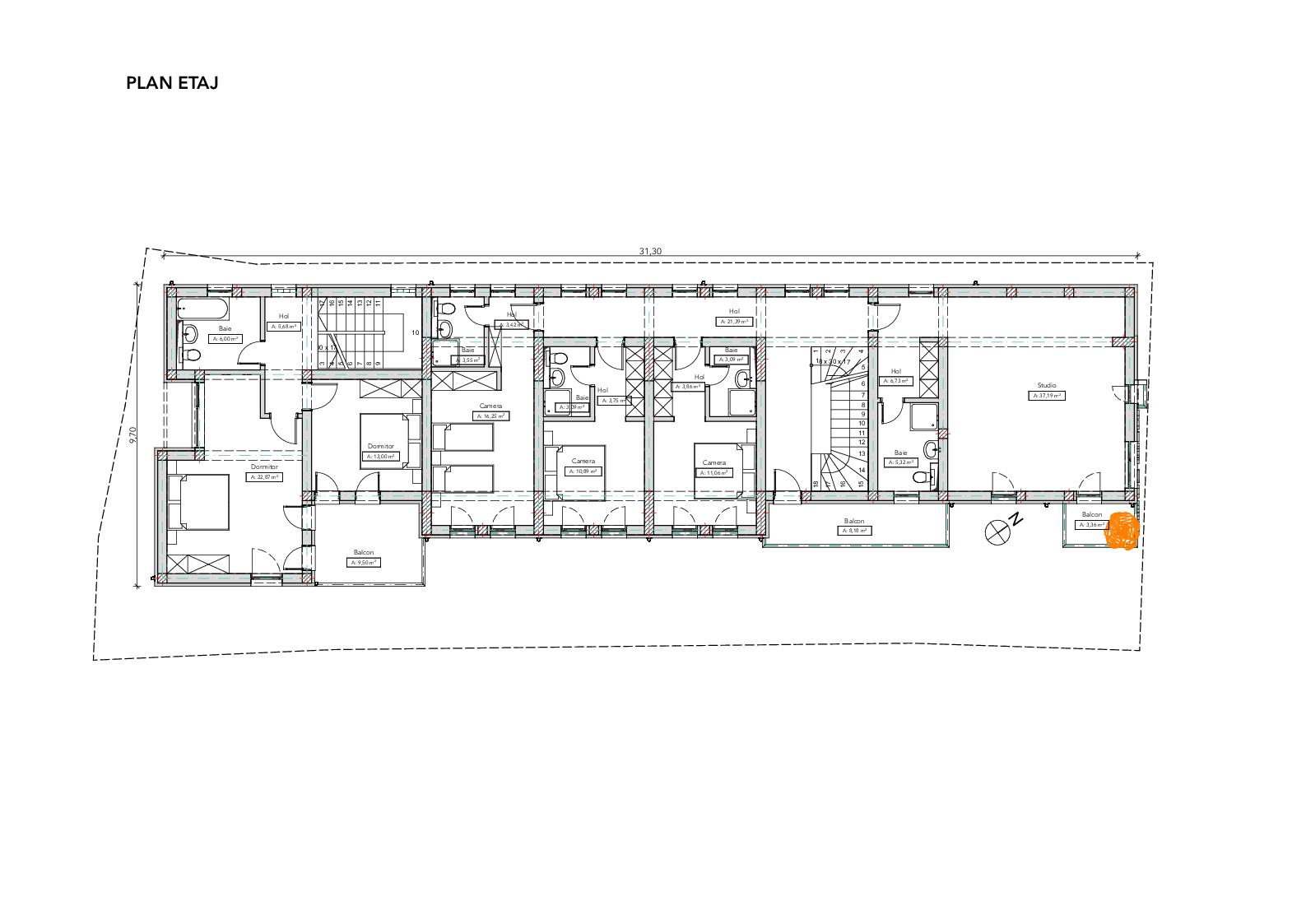
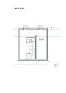
Reabilitare și construire locuință S+P+1 Buzău