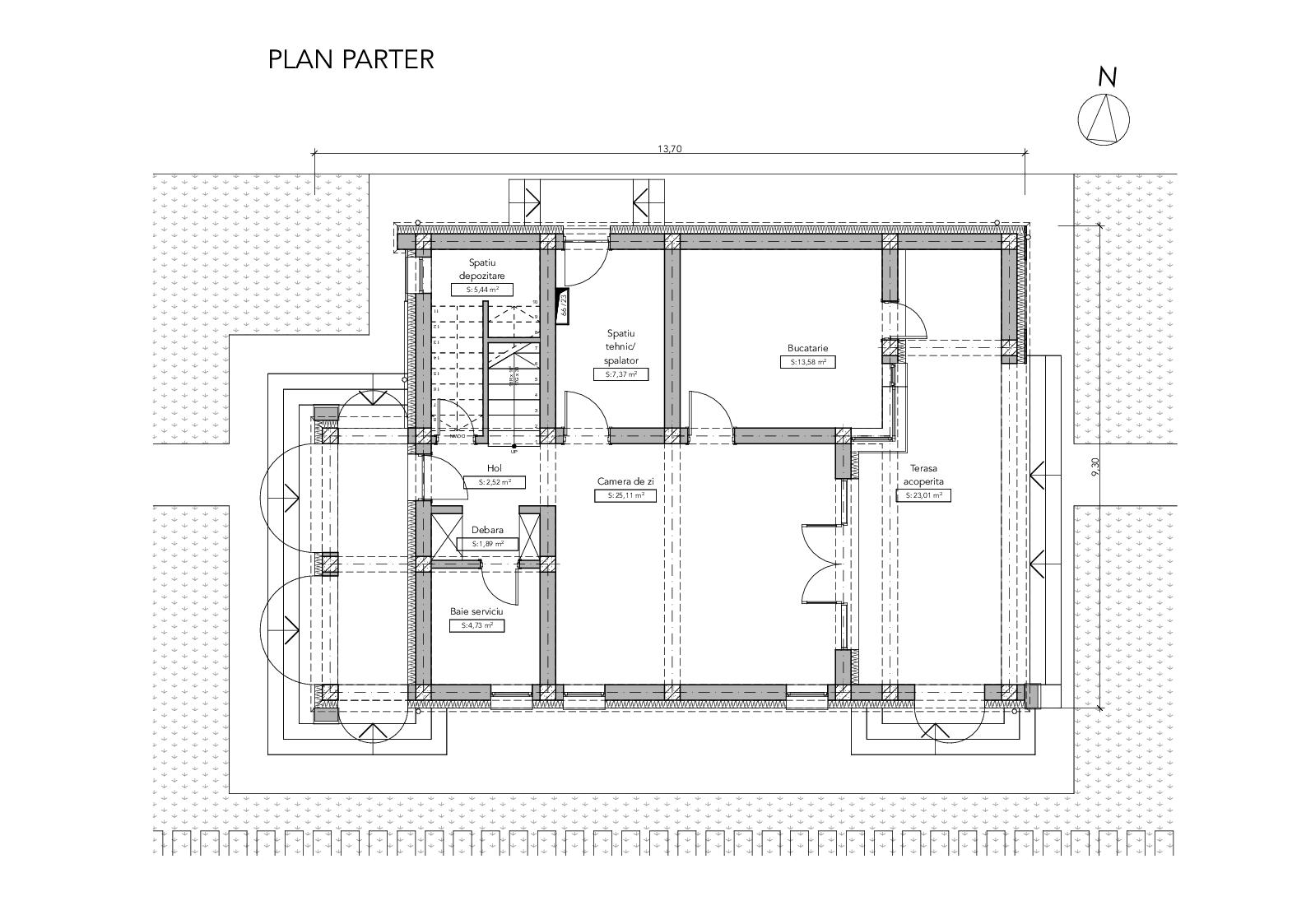
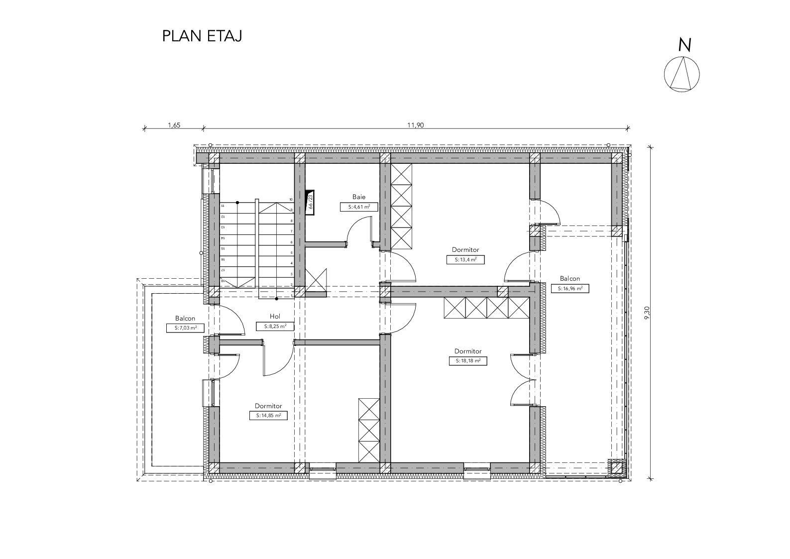
Locuință P+1 (Vernești)